Žan Nuvel, rođen 12. avgusta 1945, francuski je arhitekta koji je postao uticajna figura savremene arhitekture zahvaljujući svojim smelim i inovativnim projektima. Pojavio se krajem 20. veka kao deo generacije koja je prevazišla modernističke i postmodernističke konvencije i stvorila novi arhitektonski jezik. Nuvel je studirao na École des Beaux-Arts u Parizu i bio jedan od osnivača pokreta Mars 1976 kao i prvog sindikata arhitekata u Francuskoj, čime je pokazao svoju posvećenost izazivanju statusa quo u dizajnu i profesionalnoj praksi. Tokom karijere duge više od pet decenija, razvio je jedinstven pristup u kojem se svaki projekat tretira kao neponovljiv odgovor na svoj kontekst, umesto da se oslanja na fiksni stil.
Njegov slavni portfolio obuhvata:
- Institut arapskog sveta u Parizu (1987) sa mehaničkom fasadom koja filtrira svetlost,
- Torre Agbar neboder u Barseloni (2005), prepoznatljiv po živopisnoj fasadi,
- Musée du Quai Branly u Parizu (2006), bogato ozelenjen muzej posvećen umetnostima sveta,
- Guthrie Theater u Minneapolisu (2006), pozorište sa dramatičnim mostom ka reci Misisipi,
- Louvre Abu Dabi (2017), muzej pod monumentalnom kupolom koja stvara efekat „kiše svetlosti“,
- Nacionalni muzej Katara u Dohi (2019), inspirisan formacijom „pustinjske ruže“.
Za svoj doprinos arhitekturi, Nuvel je globalno priznat i dobitnik najviših priznanja, uključujući Pritzkerovu nagradu za arhitekturu (2008). I dalje je aktivan kroz svoju parisku firmu Ateliers Jean Nouvel, neprestano redefinišući mogućnosti savremene arhitekture.
Ko je Žan Nuvel?
Žan Nuvel je francuski arhitekta rođen 12. avgusta 1945. u Fumelu, gradu na jugozapadu Francuske. Potekao je iz skromne porodice učitelja, a postao je jedan od najistaknutijih arhitekata svoje epohe. Studirao je arhitekturu u Parizu, na École Nationale Supérieure des Beaux-Arts (ENSBA), nakon što je 1966. godine pobedio na nacionalnom konkursu za upis. Diplomirao je početkom 1970-ih.
Na početku karijere radio je sa uticajnim mentorima poput Kloda Parana i Pola Virilija, koji su oblikovali njegov progresivan pristup. Godine 1970. osniva sopstvenu praksu, a već sredinom 1970-ih postaje vodeći glas francuske arhitektonske scene. Bio je suosnivač pokreta Mars 1976, kolektiva koji se protivio korporativnom modernizmu, i pomogao je osnivanje Sindikata arhitekata (1977) radi zastupanja profesije.
Tokom narednih decenija Nuvel je izgradio globalnu reputaciju zahvaljujući projektima koji su inovativni, često smeli, ali uvek prilagođeni svom kontekstu. Danas je međunarodno poznat po nekim od najmaštovitijih građevina na svetu. Vodi firmu Ateliers Jean Nouvel, osnovanu 1994, koja je realizovala projekte na gotovo svim kontinentima. U poznim sedamdesetim godinama, Nuvel i dalje oblikuje savremenu arhitekturu filozofijom da svaki projekat mora „ponovo izmisliti“ svoj jezik dizajna u skladu sa mestom i vremenom.

Kakvu arhitekturu predstavlja Žan Nuvel?
Žan Nuvel predstavlja kontekstualni i konceptualni pristup savremenoj arhitekturi. On se ne vezuje za jednu školu dizajna, poput high-tech ili postmodernizma, i eksplicitno je odbacio etiketu „francuski high-tech“. Njegov rad polazi od ideje da svaka građevina mora imati identitet koji proizlazi iz okruženja, kulture i svrhe.
Nuvelova arhitektura koristi naprednu tehnologiju i snažne forme u službi koncepta. Mnoge njegove zgrade uključuju high-tech elemente, poput responsivnih fasada i sofisticiranih materijala, ali ostaju ukorenjene u svom kontekstu. U njegovim projektima svetlost i senka postaju arhitektonski elementi — perforirani ekrani ili rešetkasti krovovi stvaraju obrasce svetlosti povezane sa lokalnom tradicijom, što je vidljivo u Institutu arapskog sveta i Louvru Abu Dabi. Njegov stil se definiše kao „konceptualna arhitektura“, gde je originalnost i prilagođenost kontekstu uvek prioritet. Svaki projekat je jedinstveno istraživanje, od staklenih struktura do skulpturalnih kompozicija, uvek vezanih za mesto.
Koje je veliko dostignuće Žana Nuvela?
Najveće dostignuće Žana Nuvela je širenje granica savremene arhitekture kroz inovaciju i kontekstualni dizajn. Tokom karijere, Nuvel je izazivao norme, pokazujući da arhitektura može biti tehnološki napredna, a istovremeno odgovorna prema kulturi i mestu.
Ovo je prepoznato dodelom Pritzkerove nagrade za arhitekturu 2008. godine, najvišeg priznanja u oblasti. Žiri je istakao njegovu „hrabru potragu za novim idejama i izazov prihvaćenih normi“. Nuvel je pokazao da arhitektura ne mora da se zasniva na ponavljanju „potpisnog stila“, već da svaki projekat može nastati iz posebnog koncepta.
Njegov rani proboj bio je Institut arapskog sveta u Parizu, gde je spojio moderni inženjering sa arapskim motivima, što mu je donelo Aga Khan nagradu i označilo novu putanju dizajna krajem 20. veka. Kasniji projekti, poput Torre Agbar u Barseloni i Louvra Abu Dabi, pokazali su da estetika i kontekstualna osetljivost mogu delovati zajedno. Njegovo dostignuće leži u promovisanju site-specific pristupa arhitekturi širom sveta.
Najvažnija dela Žana Nuvela
Njegova najznačajnija dela obuhvataju muzeje, pozorišta i tornjeve:
- Institut du Monde Arabe, Pariz (1987) – fasada sa mehaničkim dijafragmama koje prevode tradiciju arapskih ekrana u modernu tehnologiju.
- Torre Agbar, Barselona (2005) – cilindrični toranj obavijen višebojnim dvoslojnim omotačem.
- Guthrie Theater, Minneapolis (2006) – kompleks izvođačkih umetnosti sa konzolnim mostom ka reci Misisipi.
- Louvre Abu Dabi (2017) – muzej pod kupolom koja stvara „kišu svetlosti“ kroz slojevite perforacije.
- Nacionalni muzej Katara, Doha (2019) – niz ukrštenih diskova inspirisanih formacijom „pustinjske ruže“.
01.Institut du Monde Arabe, Pariz
Ovaj projekat je Nuvela lansirao na međunarodnu scenu. Završena 1987. godine, zgrada je kulturni centar i muzej osmišljen da podstakne razumevanje između francuske i arapske kulture. Najpoznatija je po južnoj fasadi, sastavljenoj od 240 mehaničkih okulus panela. Ovi kružni dijafragmi funkcionišu poput objektiva kamere — otvaraju se i zatvaraju tokom dana kako bi regulisali sunčevu svetlost. Inspiracija je bila tradicionalna mašrabija iz arapske arhitekture, reinterpretirana modernim inženjeringom.
Kako se svetlost menja, otvori se prilagođavaju, stvarajući geometrijske obrasce svetlosti u unutrašnjosti, dok smanjuju odsjaj i toplotu. Ova responsivna fasada bila je rani primer dinamičke tehnologije u arhitekturi. Devetospratna zgrada sadrži izložbene prostore, biblioteku, kancelarije i restoran na krovu sa pogledom na Pariz. Materijali su staklo i čelik, dok geometrijski motivi referišu na arapsko umetničko nasleđe.
Institut simbolizuje dijalog između civilizacija kroz arhitekturu i osvojio je Aga Khan nagradu 1989. godine. Decenijama kasnije, ostaje značajan primer Nuvelove filozofije — forma, obrazac i mehanizam kreirani su specifično za kontekst i značenje projekta.


source phototheque IMA - Tour des livres


source Jean Nouvel

02. Torre Agbar, Barselona
Torre Agbar je neboder od 38 spratova u Barseloni, Španija, koji je projektovao Žan Nuvel i otvoren je 2005. godine. Sa visinom od 144 metra, ova poslovna kula postala je jedan od simbola Barselone, poznata po cilindričnom obliku i višebojnoj fasadi. Forma zgrade je suženi cilindar, za koji je Nuvel rekao da ga je inspirisala slika vodenog gejzira — prikladno za sedište gradskog vodovodnog preduzeća. Oblik takođe podseća na organske krivine dela katalonskog arhitekte Antonija Gaudija i okolnih brda.
Strukturalno, Torre Agbar ima betonsko jezgro i spoljašnji čelični okvir. Površina se sastoji od dva sloja: unutrašnje obloge od aluminijumskih panela obojenih u crveno, plavo i zeleno, i spoljašnje obloge od providnih staklenih žaluzina. Više od 50.000 žaluzina postavljeno je pod uglom da deluju kao zaštita od sunca i reflektuju svetlost u promenljivim bojama. Danju fasada menja izgled u skladu sa sunčevom svetlošću, dok noću integrisani LED sistem omogućava da zgrada svetli na horizontu. Materijali uključuju staklo, aluminijum i beton, primenjene tako da stvaraju dinamičan vizuelni efekat.
Iako je tipološki poslovna zgrada, Nuvel ju je oblikovao kao urbani orijentir. U vreme završetka, tradicionalisti su kritikovali njen nekonvencionalni oblik, šaljivo je poredeći sa fontanom ili drugim figurama, ali je ubrzo stekla priznanje kao značajan dodatak gradu. Danas, pod imenom Torre Glòries, predstavlja primer high-tech arhitekture prilagođene lokalnim referencama.

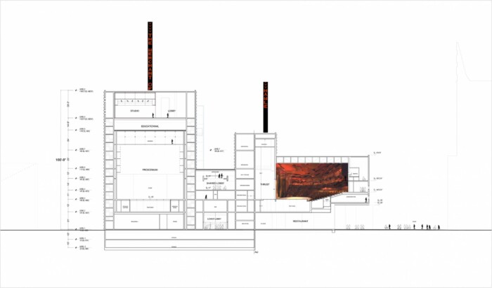
03. Guthrie Theater, Minneapolis
Guthrie Theater u Minneapolisu, SAD, je kompleks izvođačkih umetnosti koji je projektovao Žan Nuvel i otvoren 2006. godine. Projekat pokazuje Nuvelov pristup stvaranju kulturnog prostora povezanog sa okruženjem. Izgrađen na obali reke Misisipi, dizajn je inspirisan industrijskim nasleđem grada i njegovom pozorišnom tradicijom.
Zgrada je obložena metalnim panelima u tamno-plavoj boji, a njen najprepoznatljiviji element je „Beskonačni most“ (Endless Bridge) — konzolni hol koji se proteže 53 metra ka reci. Sa njegovog kraja pruža se pogled na vodu i panoramu Minneapolisa.
Unutrašnjost sadrži tri pozorišne scene, uključujući thrust stage i proscenijumsku scenu, sa akustikom i rasporedom sedišta prilagođenim izvođenju. Enterijer koristi snažne kontraste boja, poput hola obloženog staklom u žutoj nijansi, što je referenca na scensku rasvetu. Na spoljnim i unutrašnjim površinama prikazane su slike iz prošlih Guthrie produkcija, povezujući arhitekturu sa istorijom pozorišta.
Materijali uključuju čelik za konzolnu konstrukciju, staklo u obojenim i providnim formama, i metalne panele za fasadu, stvarajući industrijski karakter koji se uklapa u okolne mlinove i mostove. Kao kulturna građevina, Guthrie funkcioniše kao centar izvođačkih umetnosti i gradski orijentir, produžavajući se u urbani pejzaž i integrišući pozorišnu ikonografiju u arhitekturu.

04. Louvre Abu Dabi, Ujedinjeni Arapski Emirati
Louvre Abu Dabi je muzej umetnosti u glavnom gradu UAE, koji je projektovao Žan Nuvel i otvoren 2017. godine. Osmišljen kao „univerzalni muzej“ u arapskom svetu, predstavlja partnerstvo Abu Dabija i pariskog Louvra.
Dizajn je organizovan oko monumentalne kupole, glavnog elementa projekta. Kupola je plitka kupola prečnika 180 metara, koja izgleda kao da lebdi iznad galerija. Izgrađena je od osam slojeva aluminijuma i nerđajućeg čelika u kompleksnom geometrijskom obrascu. Sunčeva svetlost prolazi kroz perforacije, stvarajući efekat „kiše svetlosti“ — šare koje podsećaju na palmino lišće i rešetkaste ekrane u bliskoistočnoj arhitekturi.
Igra svetlosti i senke smanjuje toplotu, a istovremeno evocira atmosferu arapske medine sa isprepletenim krovovima. Ispod kupole muzej je organizovan kao mali grad galerija, sa oko 55 belih zgrada među plitkim bazenima vode. Senoviti dvori i prolazi povezuju strukture, vodeći posetioce kroz prostor.
Materijali uključuju beli beton za zgrade, kamene podove i složenu metalnu konstrukciju kupole, koja teži oko 7.500 tona, ali počiva na samo četiri skrivena stuba. Louvre Abu Dabi funkcioniše i kao muzej i kao urbano iskustvo. Nuvel je inspiraciju crpio iz lokalnih tradicija — kupola, dvorišta i kanali za vodu (falaj) — koje je reinterpretirao u savremenoj formi. Projekat je priznat zbog integracije modernog inženjeringa sa kulturnim referencama i postao je simbol Abu Dabija kao mosta između globalnih kultura i bliskoistočnog nasleđa.


[©(c)Roland Halbe; Veroeffentlichung nur gegen Honorar, Urhebervermerk und Beleg / Copyrightpermission required for reproduction, Photocredit: Roland Halbe]
05. Nacionalni muzej Katara, Doha
Nacionalni muzej Katara, otvoren 2019. u Dohi, jedno je od Nuvelovih ključnih dela inspirisanih kristalnim formacijama „pustinjske ruže“, minerala koji prirodno nastaje u suvim solnim poljima Katara.
Nuvel je ovu organsku formu preveo u arhitekturu komponujući zgradu od niza ukrštenih diskova različitih veličina. Diskovi — neki vertikalni kao zidovi, drugi horizontalni kao podovi ili krovovi — deluju kao da izrastaju iz tla i ukrštaju se pod različitim uglovima, podsećajući na latice pustinjske ruže.
Zgrada obuhvata centralno dvorište i okružuje obnovljenu palatu šeika Abdullaha, simbolično povezujući istoriju Katara sa njegovom budućnošću. Spolja, fasada je peskovito obojena i uklapa se u pustinjsko okruženje. Diskovi su izrađeni od armiranog betona i čelika, sa panelima od visokoperformansnog vlaknastog betona na spoljnim površinama.
Inženjering je zahtevao napredno 3D modeliranje i preciznost kako bi se uskladile preklapajuće kružne ploče. Unutra, muzej nudi 1,5 kilometara galerijskog prostora koji vodi posetioce kroz istoriju Katara — od geologije do savremenog doba — u organski oblikovanim prostorijama formiranim istom geometrijom diskova.
Kao nacionalna kulturna institucija, muzej odstupa od konvencionalnog muzeološkog modela i postavlja arhitektonski orijentir u Dohi. Nuvelov dizajn reinterpretira katarsko nasleđe u savremenoj formi, čineći ga jednim od najznačajnijih dela njegove kasnije karijere.

Kako je Žan Nuvel doprineo arhitekturi?
Žan Nuvel je doprineo arhitekturi širenjem inovacija u dizajnu i naglašavanjem kreativnosti zasnovane na kontekstu. Tokom svoje karijere zastupao je ideju da svaki projekat mora konceptualno da polazi od lokacije, kulture i svrhe. Ovaj pristup se razlikovao od dominantnih trendova kasnog 20. veka, kada su mnogi arhitekti bili vezani za prepoznatljiv stil ili teoriju. Njegovo insistiranje na originalnosti podstaklo je eksperimentalne pristupe u arhitekturi.
Nuvel je uveo tehnologiju u dizajn, kroz responsivne mehaničke fasade i napredne staklene tehnike koje omogućavaju da zgrade u realnom vremenu komuniciraju sa okruženjem. Pokazao je da moderna arhitektura može da uključi lokalno nasleđe, integrišući motive poput arapskih geometrijskih obrazaca ili formi inspirisanih pustinjom. Takođe je doprineo profesiji osnivanjem organizacija koje su izazivale ustaljene norme i bavljenjem urbanim pitanjima, podstičući arhitekte da razmišljaju o društvenim i političkim implikacijama svog rada. U projektima je okupljao multidisciplinarne timove inženjera, umetnika i dizajnera svetla, naglašavajući saradnju — što je preduhitrilo integrisane metode dizajna koje su danas uobičajene.
Koje nagrade i priznanja je dobio Žan Nuvel?
Njegov rad mu je doneo najviša priznanja u svetu arhitekture:
- Pritzkerova nagrada za arhitekturu (2008) – najviše svetsko priznanje u arhitekturi.
- Wolf Prize in Arts – Architecture (2005) – međunarodna nagrada dodeljena u Izraelu.
- RIBA Royal Gold Medal (2001) – najviša nagrada britanskog instituta arhitekata.
- Praemium Imperiale (2001) – globalna umetnička nagrada Japanske umetničke asocijacije.
- Aga Khan Award for Architecture (1989) – za Institut arapskog sveta u Parizu.
Pored ovih, dobio je i Zlatnog lava na Venecijanskom bijenalu (2000), počasne doktorate (npr. Royal College of Art u Londonu), kao i francuska državna odlikovanja poput Legije časti.
Da li je Žan Nuvel promenio arhitektonsku industriju?
Da. Žan Nuvel je promenio arhitekturu redefinišući način na koji se pristupa projektovanju i podstičući eksperimentisanje. Njegov uticaj se vidi u tome što mnogi savremeni arhitekti danas teže da svaki projekat bude jedinstven i kontekstualno specifičan, umesto da se oslanjaju na ponavljajući stil.
Pre njegovog uspona, scena je bila podeljena između modernizma i postmodernizma. Nuvel je pokazao da arhitektura može da bude site-specific i da se oslobađa stilskih ponavljanja. Time je podstakao gradove i investitore da naručuju nekonvencionalne projekte. Njegova upotreba automatizovanih fasada i strukturalnih inovacija usmerila je industriju ka tehnološki inventivnijim pristupima. Bio je i rani korisnik kompjuterski asistiranog dizajna, što je otvorilo put današnjoj digitalnoj arhitekturi.
Da li je Žan Nuvel bio kontroverzan?
Njegov rad je povremeno izazivao kontroverze, iako je lično izbegao skandale.
- Tour Sans Fins (Pariz, 1980-e) – neboder zamišljen da „nestaje u nebu“ bio je kritikovan kao previše radikalan i nikada nije izgrađen.
- Philharmonie de Paris (2015) – projekat je imao kašnjenja i prekoračenja budžeta; Nuvel je odbio da prisustvuje otvaranju jer je smatrao da je njegova vizija kompromitovana.
- One New Change, London (2010) – tržni centar blizu katedrale Svetog Pavla kritikovan je od strane princa Čarlsa i drugih zbog savremene arhitekture u istorijskom kontekstu.
- Torre Agbar, Barselona (2005) – nekonvencionalni oblik izazvao je podeljene reakcije, ali je kasnije priznat kao gradski simbol.
Najpoznatiji arhitekti pored Žana Nuvela
- Frank Gehry – Guggenheim Bilbao, Walt Disney Concert Hall.
- Zaha Hadid – London Aquatics Centre, MAXXI Rim, Heydar Aliyev centar u Bakuu.
- Renzo Piano – Centre Pompidou, Shard u Londonu, Kansai aerodrom u Japanu.
- Frank Lloyd Wright, Le Corbusier, Mies van der Rohe – temelji modernizma.
- Norman Foster, Richard Rogers, Rem Koolhaas, Tadao Ando – značajni doprinosi krajem 20. i početkom 21. veka.
Šta je Žan Nuvel najviše projektovao?
Njegov portfolio obuhvata različite tipove zgrada, ali uvek sa smelim, konceptualnim pristupom:
- Kulturne i javne institucije – muzeji, pozorišta, koncertne dvorane (npr. Nacionalni muzej Katara, Musée du Quai Branly, Guthrie Theater, Louvre Abu Dabi).
- Neboderi i poslovne zgrade – Torre Agbar u Barseloni, Doha Tower u Kataru, Tours Duo u Parizu.
- Stambene i mešovite zgrade – Nemausus u Nîmesu (socijalno stanovanje, 1987), One Central Park u Sidneju (2014), luksuzne rezidencije i hoteli poput Hotel Puerta América u Madridu.
Inovacije kontekstualnog dizajna
Mnogi projekti Žana Nuvela izmiču jednostavnoj kategorizaciji jer na jedinstven način integrišu umetnost, tehnologiju i pejzaž. Projektovao je infrastrukturne elemente poput paviljona‑mosta za Expo 2002 u Švajcarskoj, futurističke predloge za mobilnu arhitekturu, pa čak i proizvode i nameštaj. Njegov rad karakteriše eksperimentisanje: fasade koje se pomeraju, zgrade koje reflektuju svoje okruženje i strukture koje postaju orijentiri zahvaljujući originalnosti. Svaki projekat tretira se kao istraživanje novih formi i ideja, što često vodi ka jedinstvenim rešenjima.
Pored ovih kategorija, Nuvelov opus odlikuje globalni domet i raznovrsnost. Njegova firma Ateliers Jean Nouvel realizovala je preko 200 projekata u više od 30 zemalja, oblikujući gradske pejzaže širom Evrope, Bliskog istoka, Azije i Severne Amerike. Među dodatnim delima su:
- Fondation Cartier pour l’Art Contemporain, Pariz – stakleni muzej osmišljen da se uklopi u okruženje.
- Lucerne Culture and Congress Centre, Švajcarska – prepoznatljiv po velikom konzolnom krovu.
- 40 Mercer, Njujork – stambena zgrada sa inovativnim konceptom.
Bez obzira na tipologiju (poslovne zgrade, muzeji, stanovi, pozorišta, hoteli), Nuvelovi projekti dele dosledan pristup: savremenu viziju razvijenu kroz kontekst i inovaciju. Ova raznovrsna, ali konceptualno ujedinjena dela potvrđuju ga kao arhitektu koji je proširio obim modernog dizajna kroz više žanrova.


Gde je Žan Nuvel studirao?
Nuvel je studirao arhitekturu u Parizu, na École Nationale Supérieure des Beaux-Arts (ENSBA). Nakon srednje škole, najpre je upisao École des Beaux-Arts u Bordou. Godine 1966. osvojio je prvo mesto na nacionalnom konkursu za upis na ENSBA u Parizu. Studirao je tokom kasnih 1960-ih, u vreme studentskih protesta maja 1968, što je uticalo na njegov pogled na ulogu arhitekture u društvu. Diplomirao je 1972. godine.
Tokom studija i neposredno nakon diplome, sticao je praktično iskustvo: radio je kao asistent u studiju Kloda Parana, poznatog po eksperimentalnim idejama, i sarađivao sa urbanim teoretičarem Polom Virilijom. Kombinacija formalnog obrazovanja i mentorstva eksperimentalnih figura postavila je temelje njegove karijere.
Da li je imao poznate učitelje ili učenike?
Da. Nuvel je imao značajne mentore i uticao na mlađe arhitekte kroz praksu.
- Claude Parent – francuski arhitekta koji je razvio koncept „oblique architecture“ (arhitektura kosih ravni). Nuvel je radio kao njegov asistent krajem 1960-ih, što ga je podstaklo da preispituje konvencionalni dizajn.
- Paul Virilio – urbanista i filozof, koji je u saradnji sa Parentom uveo perspektive o prostoru, tehnologiji i društvu.
Nuvel nije bio profesor u akademskom smislu, pa nema direktne studente, ali kroz svoju firmu Ateliers Jean Nouvel mentorisao je i sarađivao sa arhitektima koji su kasnije razvili samostalne karijere. Njegov atelje funkcionisao je kao škola kroz praksu.
Primeri uticaja:
- Dominique Perrault i Daniel Libeskind – arhitekti njegove generacije koji su razvili pristupe zasnovane na kontekstu.
- Mia Hägg, švedska arhitektkinja, osnovala je sopstvenu praksu nakon rada sa Nuvelom.
Mnogi arhitekti 2000-ih učili su iz njegovih projekata, analizirajući upotrebu materijala, formalne eksperimente i odnos prema mestu i kulturi.
Kako studenti mogu učiti iz rada Žana Nuvela?
Studenti mogu učiti iz rada Žana Nuvela proučavanjem njegovog dizajnerskog procesa i principa koji se jasno vide u njegovim projektima, koristeći ih kao lekcije iz kreativnosti i razmišljanja zasnovanog na kontekstu. Osnovna odlika Nuvelovog rada jeste da svaki dizajn počinje od centralnog koncepta vezanog za kontekst.
Studenti mogu analizirati projekte poput Instituta arapskog sveta ili Nacionalnog muzeja Katara i pitati se: koja ideja pokreće dizajn? Čitanje Nuvelovih opisa ili kritika ovih projekata pokazuje kako forme nastaju iz kulturnih simbola ili prirodnih fenomena. To naglašava važnost razvijanja vodeće ideje i dopuštanja da dizajn iz nje proizađe, umesto da se primenjuje unapred definisani stil.
Nuvel često integriše tehnologiju i materijale na inovativne načine — kao u responsivnim metalnim otvorima Instituta arapskog sveta ili u čeličnoj rešetkastoj kupoli Louvra Abu Dabi. Studenti mogu učiti analizom kako je sarađivao sa inženjerima i specijalistima da bi realizovao ove projekte. Proučavanje tehničkih detalja takvih fasada pokazuje odnos između inženjeringa i arhitekture i ističe vrednost interdisciplinarne saradnje.
Direktno iskustvo Nuvelovih zgrada omogućava studentima da razumeju njihove prostorne kvalitete. Prostori poput Filharmonije u Parizu ili Louvra Abu Dabi pokazuju kako svetlost, kretanje i prostorna sekvenca utiču na ljudsku percepciju. Mnoge njegove zgrade — muzeji, pozorišta, javni prostori — dostupne su posetiocima, a virtuelni resursi pružaju dodatne mogućnosti za proučavanje. Ove posete pokazuju kako odluke u dizajnu oblikuju korisničko iskustvo.
Nuvel je objavio knjige i intervjue u kojima artikuliše svoju filozofiju. Studenti bi trebalo da se upoznaju, na primer, sa njegovim predavanjem povodom Pritzkerove nagrade i tekstovima u arhitektonskim časopisima, kako bi razumeli njegov stav da arhitektura treba da odgovori na ljude, mesto i vreme. Njegove skice i konkursne table otkrivaju način na koji vizuelno komunicira ideje, pokazujući kako dijagrami, renderi i reči prenose suštinu projekta.
Nuvelova karijera pokazuje vrednost istraživanja nekonvencionalnih rešenja. Njegov rad dokazuje da arhitektura može da odstupi od uobičajenih formi, a da ipak ostane ukorenjena u kontekstu i funkcionalnosti. Studenti mogu učiti iz ove ravnoteže, osiguravajući da eksperimentalni pristupi istovremeno zadovolje programske i ekološke zahteve.
Stavovi autora ne odražavaju nužno uređivačku politiku P.U.L.S.A. Impresum.
Podrži P.U.L.S.E
P.U.L.S.E je prostor za mišljenje, sumnju i odgovornost. Ako ti je taj prostor važan, omogući nam da ostane otvoren.
Podrži na PatreonuIli putem PayPala:
You must be logged in to post a comment Login